Aardsbroek Kronenberg

ruime tweekapper

Gegevens woning:
Prijs: Verkocht
Kaveloppervlak: ± 215 m²
Inhoud: 518 m³ incl. garage 58 m³
Slaapkamers: 3

Beschrijving
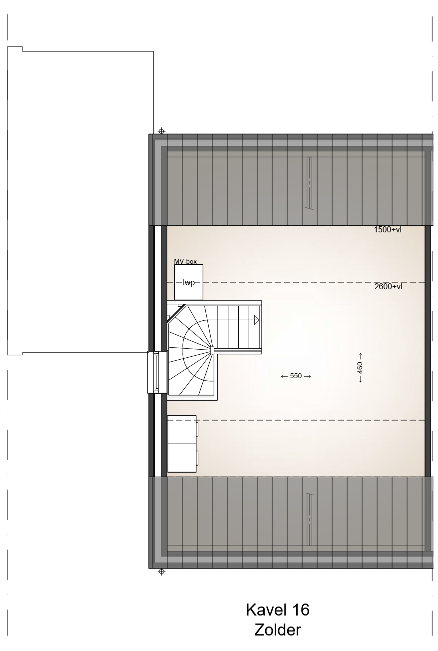
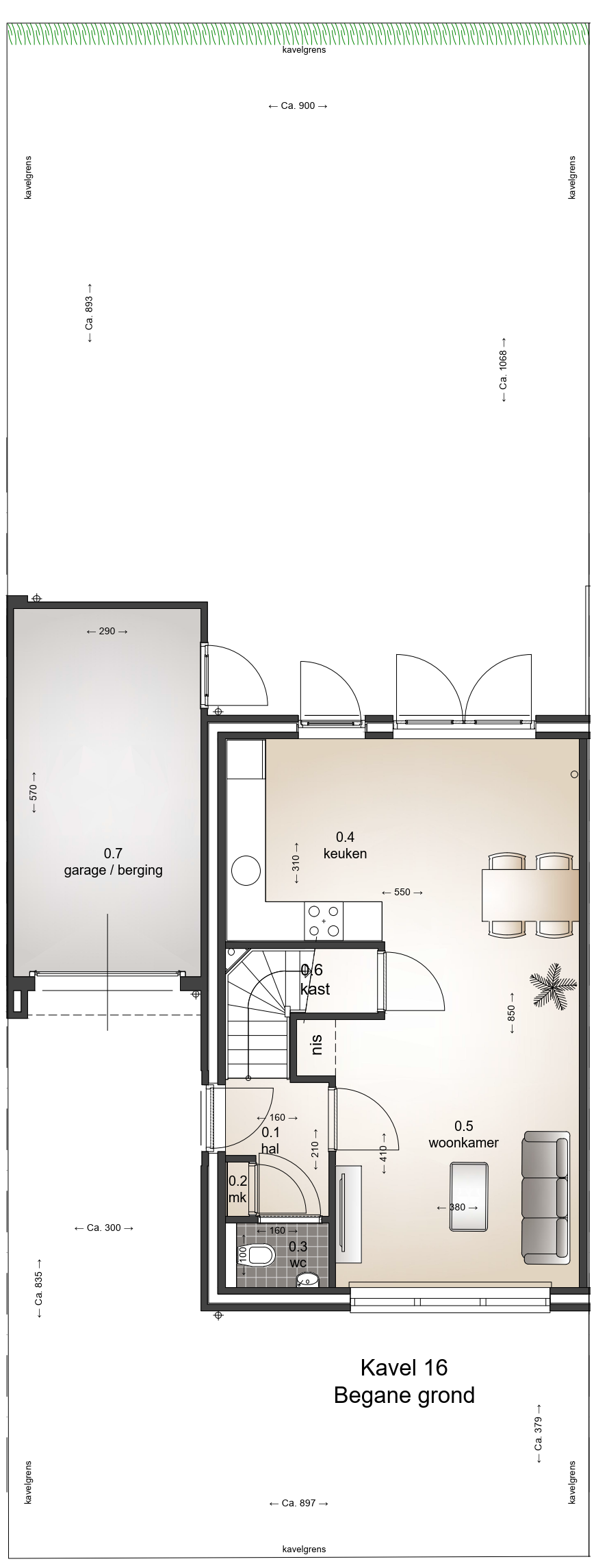
Deze sfeervolle woning met een ruime garage/berging biedt volop ruimte en woongenot. Via de hal op de begane grond, waar zich het toilet en de trap naar de 1e verdieping bevinden, kom je in een ruime woonkamer met open keuken en ruime opbergkast. De openslaande tuindeuren aan de achterzijde geven toegang tot het terras en de tuin, die ook via de garage/berging bereikbaar zijn. Op de 1e verdieping bevinden zich de badkamer en 3 ruime slaapkamers. De vaste trap naar de zolder leidt naar een grote ruimte waar de installatie zich bevindt en ruimte is voor wasmachine en droger. De woningen liggen met de tuin richting Simonsstraat.   

Fotoimpressie: